Procedure detail of the agitated thin film dryer 2D AutoCAD drawing
Description
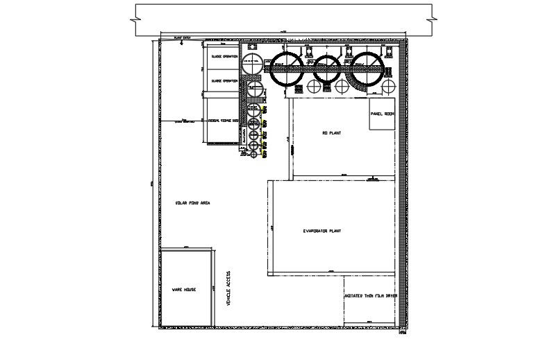
Procedure detail of the agitated thin film dryer 2D AutoCAD drawing is presented in this file. Lime dosing tank, line preparation tank, soda ash dosing tank, polymer, pH correction, and magnesium hydroxide dosing tank locations are mentioned. Evaporator plant, warehouse, solar pond area, RO plant, chemical storage shed, sludge operation, and vehicle access areas are mentioned. For more details download the AutoCAD drawing file from our cadbull website.
Uploaded by:

