Fastener method for anchoring standard grating drawing
Description
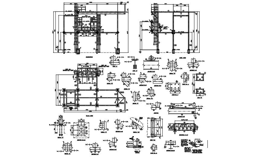
Fastener method for anchoring standard grating drawing is given in this file. Plan view, section view, detail drawing, side view, and elevation views are given. For each parts, the dimensions are mentioned. For more details download the AutoCAD drawing file from our cadbull website.
Uploaded by:

