An environmental plant building column section and elevation views
Description
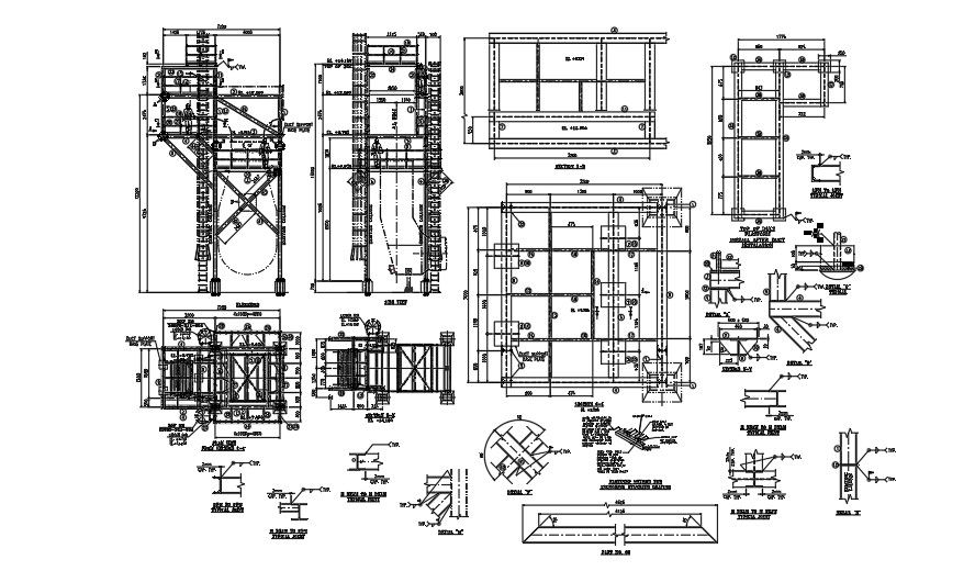
An environmental plant building column section and elevation views are given in this drawing. Side view, section view, detail drawing, H beam, typical joint drawing, and plans are provided. For more details download the AutoCAD drawing file from our cadbull website.
Uploaded by:

