138’x105’ girls primary to middle school building elevation views
Description
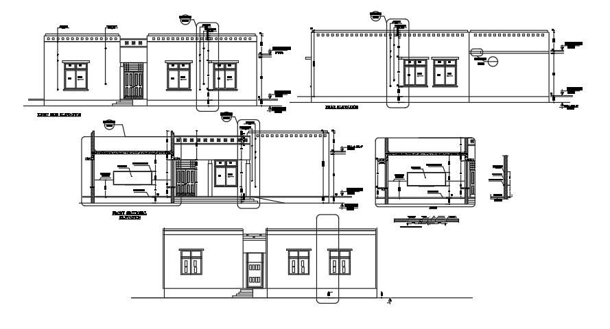
138’x105’ girls primary to middle school building elevation views are given. The right side, rear side, front, and left side elevations views are given. For more details download the AutoCAD drawing file from our cadbull website.
Uploaded by:

