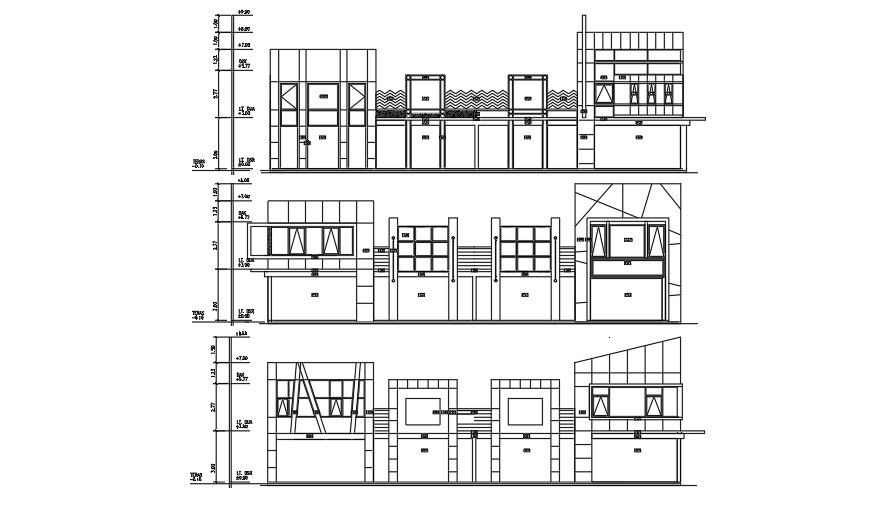
138’x105’ girls primary to middle school bathroom elevation and section view
Description
138’x105’ girls primary to middle school bathroom elevation and section view is given. The front door is visible. For more details download the AutoCAD drawing file from our cadbull website.
Uploaded by:

