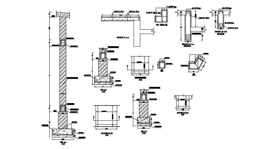
2’6” length of the footing section 2D drawing is given in this file
Description
2’6” length of the footing section 2D drawing is given in this file. The height of the footing is 1’. Width of the column is 9”. Wall thickness is 9”. Reinforcement details are mentioned. For more details download the AutoCAD drawing file from our cadbull website.
Uploaded by:

