138’x105’ girls primary to middle school slab reinforcement basement plan
Description
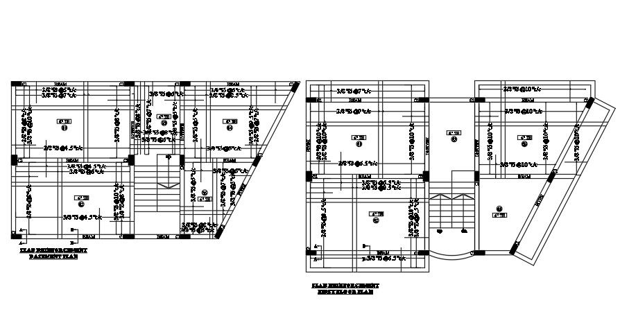
138’x105’ girls primary to middle school slab reinforcement basement plan is given. Two way slab is provided. The reinforcement details are given. First floor slab reinforcement is mentioned. For more details download the AutoCAD drawing file from our cadbull website.
File Type:
DWG
File Size:
173 KB
Category::
Construction
Sub Category::
Concrete And Reinforced Concrete Details
type:
Gold
Uploaded by:

