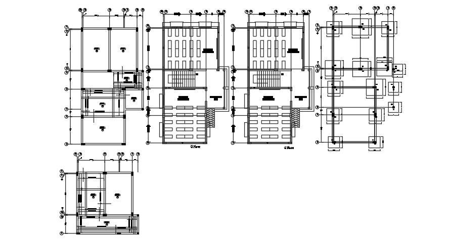
138’x105’ girls primary to middle school ground floor structural layout drawing
Description
138’x105’ girls primary to middle school ground floor structural layout drawing is given. The column and footing layouts are given with details. Class room details, verandah, and column locations are mentioned. For more details download the AutoCAD drawing file from our cadbull website.
Uploaded by:

