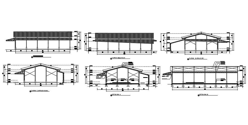
A section and elevation view of the 3.6x3.1m building view
Description
A section and elevation view of the 3.6x3.1m building view is given. The front elevation, and back elevations are given. The total height of the building is 10’. For more details download the AutoCAD drawing file from our cadbull website.
Uploaded by:

