138’x105’ girls primary to middle school elevation detail drawings
Description
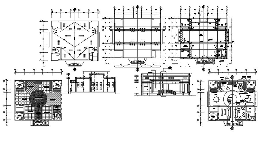
138’x105’ girls primary to middle school elevation detail drawings are given. Total height of the building is 15’6”. Math department, science department, language department, art department, meeting area, hall, staff bathroom, library, and store rooms are available. For more details download the AutoCAD drawing file from our cadbull website.
Uploaded by:

