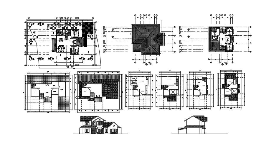
7x15m G+ 1 architecture house plan 2D CAD drawing
Description
7x15m G+ 1 architecture house plan 2D CAD drawing is given in this file. In this file, ground floor plan, first floor pan, roof plan, and layouts are given. On this ground floor, kitchen, dining area, living room, master bedroom, kid’s room, and common bathrooms are available. On the second floor, living area, master bedroom with attached toilet, two guest rooms, and common bathrooms are available. For more details download the AutoCAD drawing file from our cadbull website.
Uploaded by:

