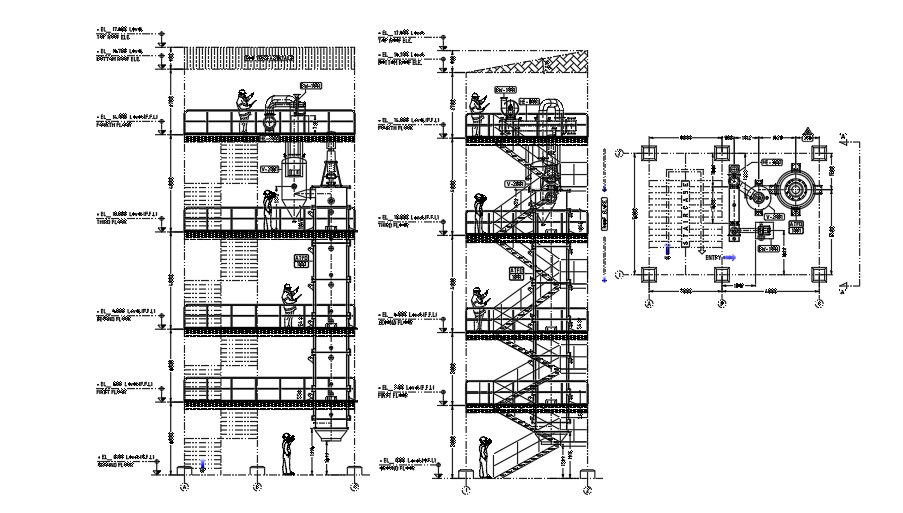
The left side section view of the 19x7m water purifier treatment plant building
Description
The left side section view of the 19x7m water purifier treatment plant building AutoCAD drawing model is given in this file. Seal water package, feed tank & pumps, dosing package, CIP tanks & pumps, and ground floor plan is given. For more details download the AutoCAD drawing file from our cadbull website.
File Type:
DWG
File Size:
353 KB
Category::
Urban Design
Sub Category::
Town Water Treatment Design
type:
Gold
Uploaded by:

