Attorney headquarter's first floor lighting plan details
Description
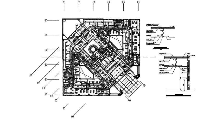
Attorney headquarter's first floor lighting plan details are given in this CAD file. Each lighting points are noted. On this first floor, the office room, toilets, manager room, department manager, lobby, and salons are available. For more details download the AutoCAD drawing file from our cadbull website.
Uploaded by:

