Attorney headquarters third floor lighting plan and switch details
Description
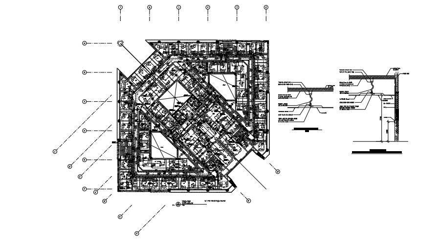
Attorney headquarters third floor lighting plan and switch details are given in this CAD file. Each lighting points are noted. On this third floor, the secretary room, office room, toilets, consultant room, corridors, manager room, department manager, lobby, and salons are available. For more details download the AutoCAD drawing file from our cadbull website.
File Type:
DWG
File Size:
1.5 MB
Category::
Electrical
Sub Category::
Electrical Automation Systems
type:
Gold
Uploaded by:

