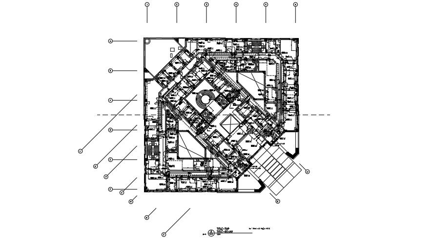
Attorney headquarters first floor power plan details
Description
Attorney headquarters first floor power plan details are given in this CAD file. Each lighting points are noted. On this first floor, the office room, toilets, manager room, department manager, lobby, and salons are available. For more details download the AutoCAD drawing file from our cadbull website.
Uploaded by:

