Attorney headquarters ground floor mechanical power plan
Description
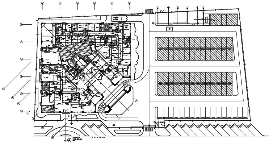
Attorney headquarters ground floor mechanical power plan details are given in this CAD file. Men’s waiting area, women’s prayer, men’s prayer, women’s waiting room, store, lobby, main common room, toilets, prayer area, commander guard, main control room, mechanical room, and officers are available. For more details download the AutoCAD drawing file from our cadbull website.
Uploaded by:

