Attorney headquarter building electrical connection drawing
Description
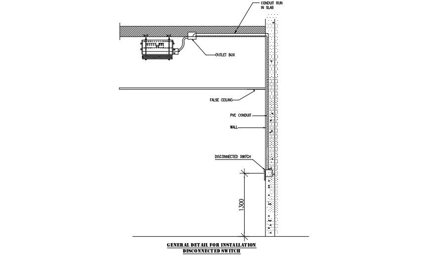
Attorney headquarter building electrical connection drawing is given in this file. Installation disconnected switch details are given. Wall, PVC conduit, false ceiling, outlet box and disconnected switches are mentioned. For more details download the AutoCAD drawing file from our cadbull website.
File Type:
DWG
File Size:
2.8 MB
Category::
Electrical
Sub Category::
Electrical Automation Systems
type:
Gold
Uploaded by:

