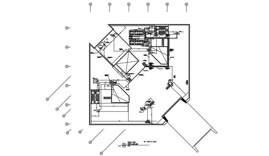
Attorney headquarters roof mechanical power plan drawing
Description
Attorney headquarters roof mechanical power plan drawing is specified in this drawing. A cable tray is provided. Power supply details are mentioned. For more details download the AutoCAD drawing file from our cadbull website.
Uploaded by:
