11x20m Row House Plan with Furniture Layout CAD Drawing
Description
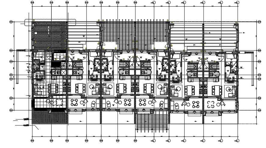
11x20m row house plan furniture’s layout drawings are given in this file. Bathroom, laundry, corridor, store room, master bedroom room with attached toilet, common bathroom, and proch are given. For more details download the CAD file from our cadbull website.
Uploaded by:

