The marking layout of the 11x20m row house design is given in this file
Description
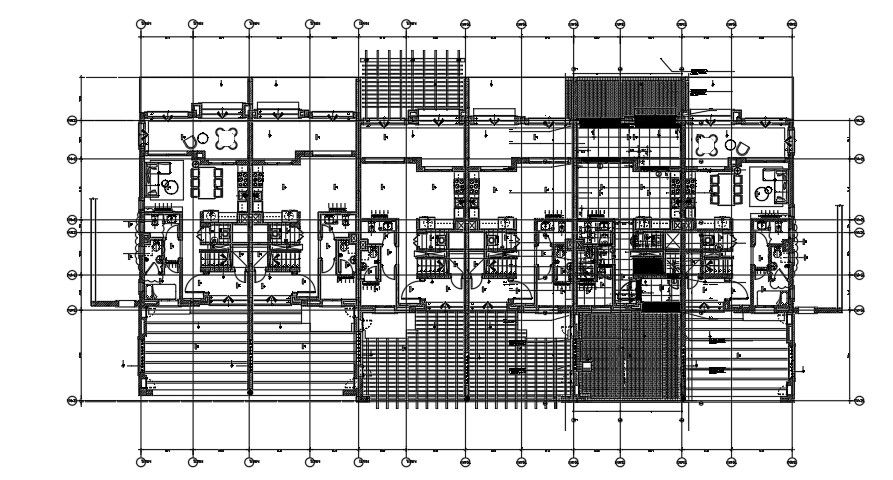
The marking layout of the 11x20m row house design is given in this file. On this floor, 6 houses are available. Bathroom, laundry, corridor, store room, master bedroom room with attached toilet, common bathroom, and proch are given. For more details download the CAD file from our cadbull website.
Uploaded by:

