40x20 row house plan ceiling construction drawing
Description
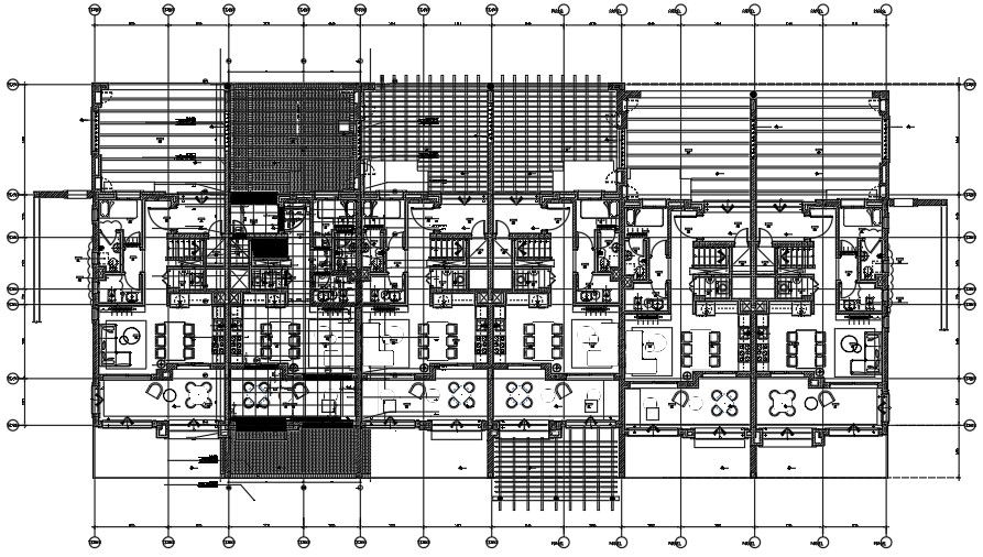
40x20 row house plan ceiling construction drawing is given in this file. The living room, kitchen, master bedroom with the attached toilet, common bathroom, entrance, balcony, and porch are available. For more details download the CAD file from our cadbull website.
Uploaded by:

