36x11m ware house construction drawing
Description
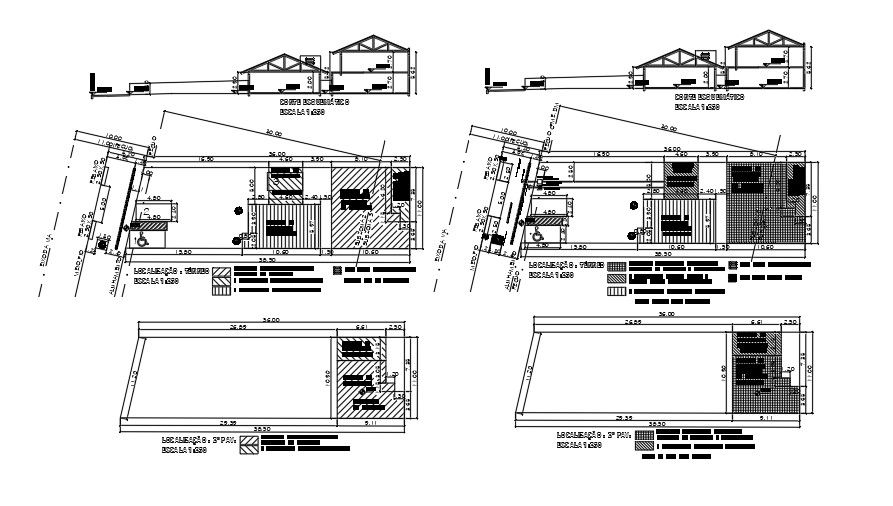
36x11m ware house construction drawing is given in this AutoCAD model. The existing residential, regularization residential, regularization commercial, and locations are mentioned in this drawing. For more details download the CAD file from our cadbull website.
Uploaded by:

