36x11m ware house roof truss joint construction drawing
Description
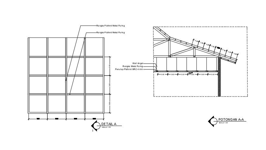
36x11m ware house roof truss joint construction drawing is given in this file. The distance between each purlin is given. For more details download the CAD file from our cadbull website.
File Type:
DWG
File Size:
1.3 MB
Category::
Construction
Sub Category::
Construction Detail Drawings
type:
Free
Uploaded by:

