1500x1800mm toilet hot and cold water pipe line drawings
Description
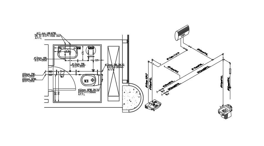
1500x1800mm toilet hot and cold water pipe line drawings are given in this CAD file. Isometric directions are provided. Piping plan and isometric views are given. The dimension of each pipe is mentioned. For more details download the CAD file from our cadbull website.
Uploaded by:

