1500x1800mm toilet hot and cold water pipe diameter detail drawings
Description
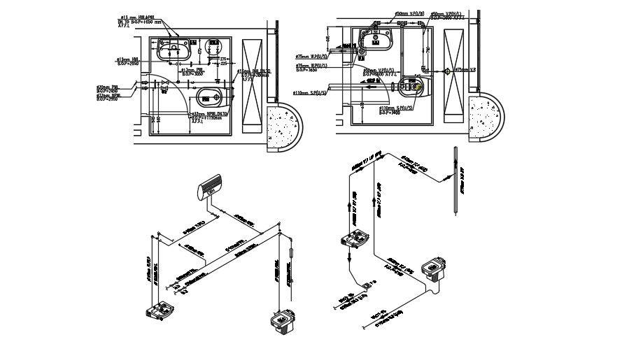
1500x1800mm toilet hot and cold water pipe diameter detail drawings are given in this CAD file. Isometric directions are provided. Piping plan and isometric views are given. The dimension of each pipe is mentioned. For more details download the CAD file from our cadbull website.
File Type:
DWG
File Size:
2.4 MB
Category::
Dwg Cad Blocks
Sub Category::
Sanitary CAD Blocks And Model
type:
Gold
Uploaded by:

