26x19m row house duplex house plan architecture drawing
Description
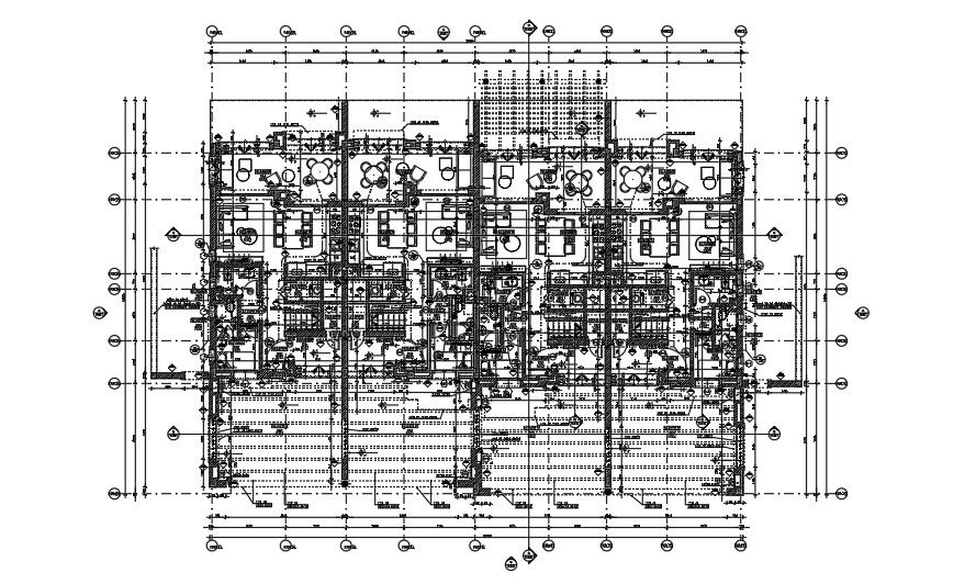
26x19m row house duplex house plan architecture drawing is given in this file. On the ground floor the maid room with attached bathroom, common bathroom, living room, entrance, porch, terrace, and laundry areas are available. For more details download the CAD file from our cadbull website.
Uploaded by:

