26x19m first floor row house staircase detail drawing
Description
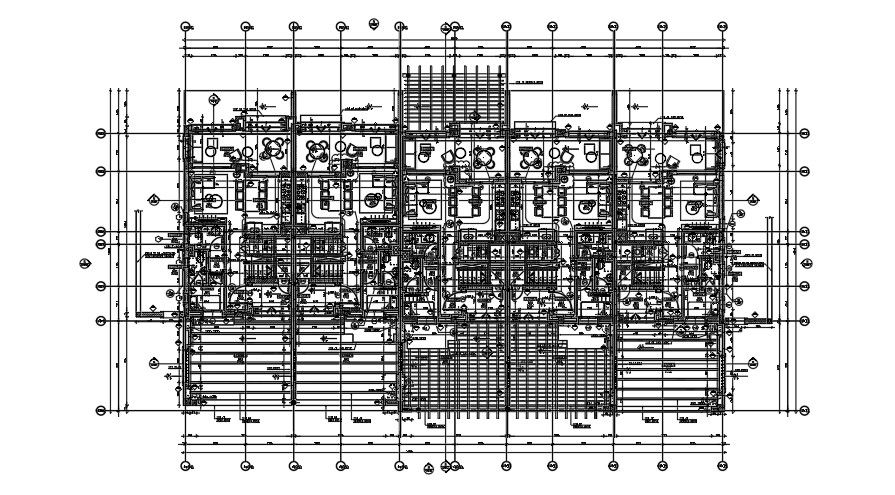
26x19m first floor row house staircase detail drawing is specified in this file. The staircase counts are mentioned. The master bedroom with attached toilet, kid’s room, common bathroom, and two balconies are available on this first floor. For more details download the CAD file from our cadbull website.
Uploaded by:

