26x19m first floor row house wall layout design is specified
Description
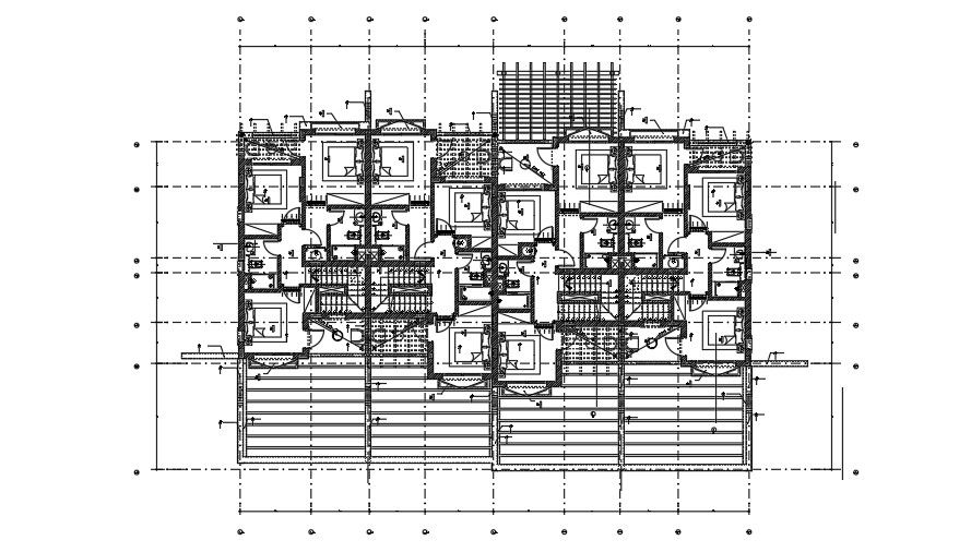
26x19m first floor row house wall layout design is specified in this file. The master bedroom with attached toilet, kid’s room, common bathroom, and two balconies are available on this first floor. For more details download the CAD file from our cadbull website.
Uploaded by:

