26x19m ground floor row house wall layout drawing
Description
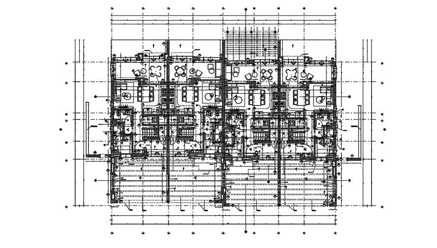
26x19m ground floor row house wall layout drawing is given in this model. On the ground floor the maid room with attached bathroom, common bathroom, living room, entrance, porch, terrace, and laundry areas are available. For more details download the CAD file from our cadbull website.
Uploaded by:

