26x19m first floor window location drawing is specified in this file
Description
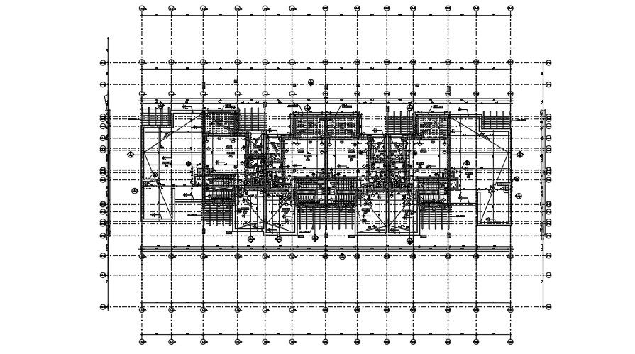
26x19m first floor window location drawing is specified in this file. The staircase counts are mentioned. The master bedroom with attached toilet, kid’s room, common bathroom, and two balconies are available on this first floor. For more details download the CAD file from our cadbull website.
File Type:
DWG
File Size:
5.4 MB
Category::
Dwg Cad Blocks
Sub Category::
Windows And Doors Dwg Blocks
type:
Gold
Uploaded by:

