26x19m Row House Floor Plan with Furniture Layout CAD file
Description
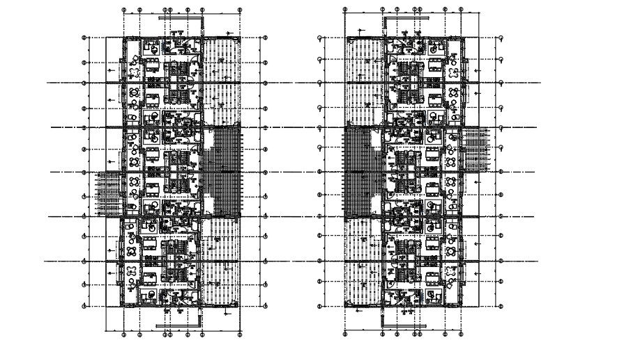
26x19m row house ground & first floor furniture’s layout drawing is given in this file. On the ground floor the maid room with attached bathroom, common bathroom, living room, entrance, porch, terrace, and laundry areas are available. The master bedroom with attached toilet, kid’s room, common bathroom, and two balconies are available on this first floor. For more details download the CAD file from our cadbull website.
Uploaded by:

