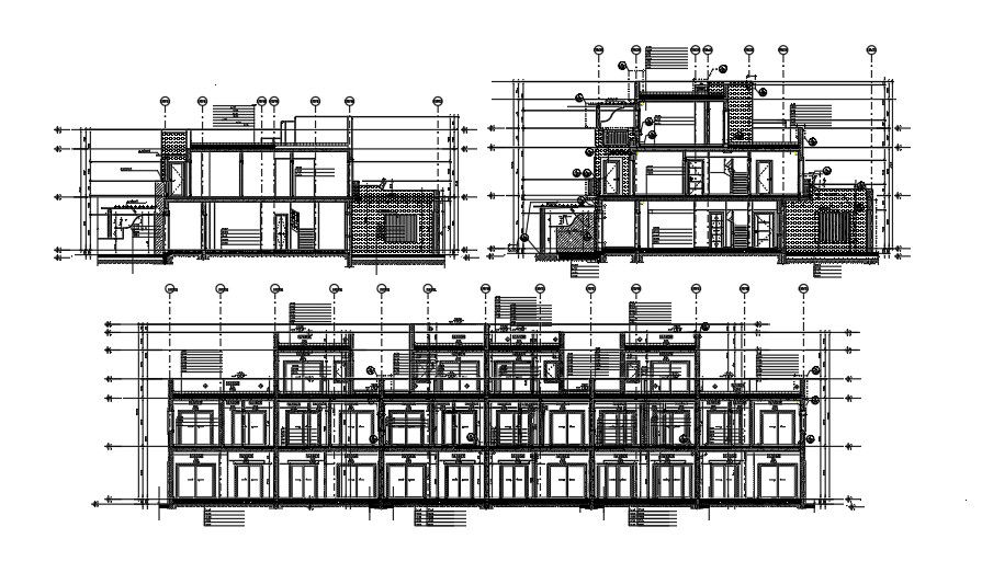
The front and left side section view of the 26x19m row house building
Description
The front and left side section view of the 26x19m row house building is given in this CAD file. This is G+ 1 house building. On the ground floor the maid room with attached bathroom, common bathroom, living room, entrance, porch, terrace, and laundry areas are available. The master bedroom with attached toilet, kid’s room, common bathroom, and two balconies are available on this first floor. The total height of the row house building is 11m. A maid room is available. For more details download the CAD file from our cadbull website.
Uploaded by:

