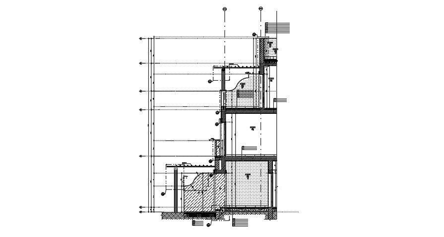
26x19m row house building floor construction model is given in this AutoCAD file
Description
26x19m row house building floor construction model is given in this AutoCAD file. 60mm interlock, 770mm sand, 200mm curshed stone, compacted soil, 20mm mortar, 60mm clean sand fill, and other details are mentioned. For more details download the CAD file from our cadbull website.
Uploaded by:

