16x14m house plan electrical conduit layout of ground floor slab drawing
Description
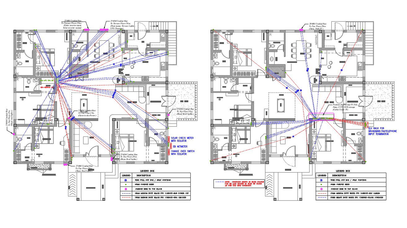
16x14m house plan electrical conduit layout of ground floor slab drawing is given in this file. Each points are mentioned. Wire pull out box, 25mm conduit bend, conduit rise to top floor, 25mm medium duty white pvc conduit, and 20mm heavy duty white pvc conduits are provided. For more details download the CAD drawing file from our cadbull website.
Uploaded by:

