15x18m architecture wonderful house plan CAD drawing
Description
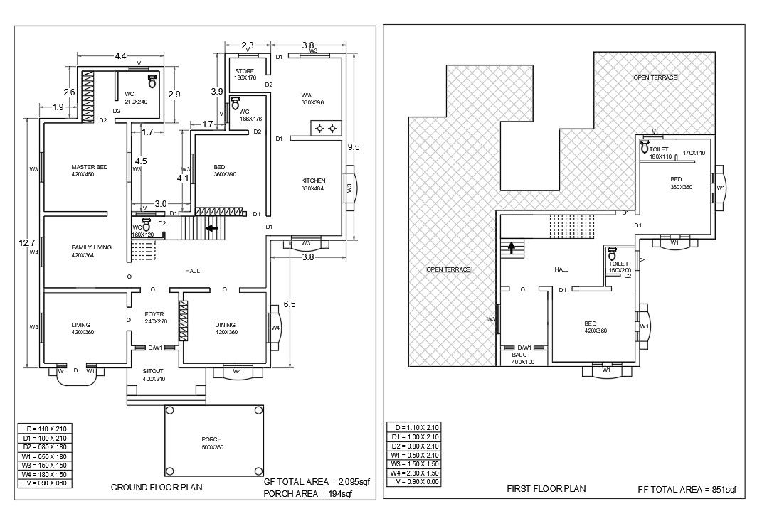
15x18m architecture wonderful house plan CAD drawing is given in this file. The ground floor and first floor plans are given. On the ground floor, portico, sit out, foyer, dining area, living room, family room, kitchen, master bedroom with the attached toilet, kid’s room with attached toile, store room, and common bathrooms are available. On the first floor, the open terrace, bedroom with the attached toilet, hall, and balconies are available. For more details download the CAD drawing file from our cadbull website.
Uploaded by:

