A swimming pool construction CAD drawing model
Description
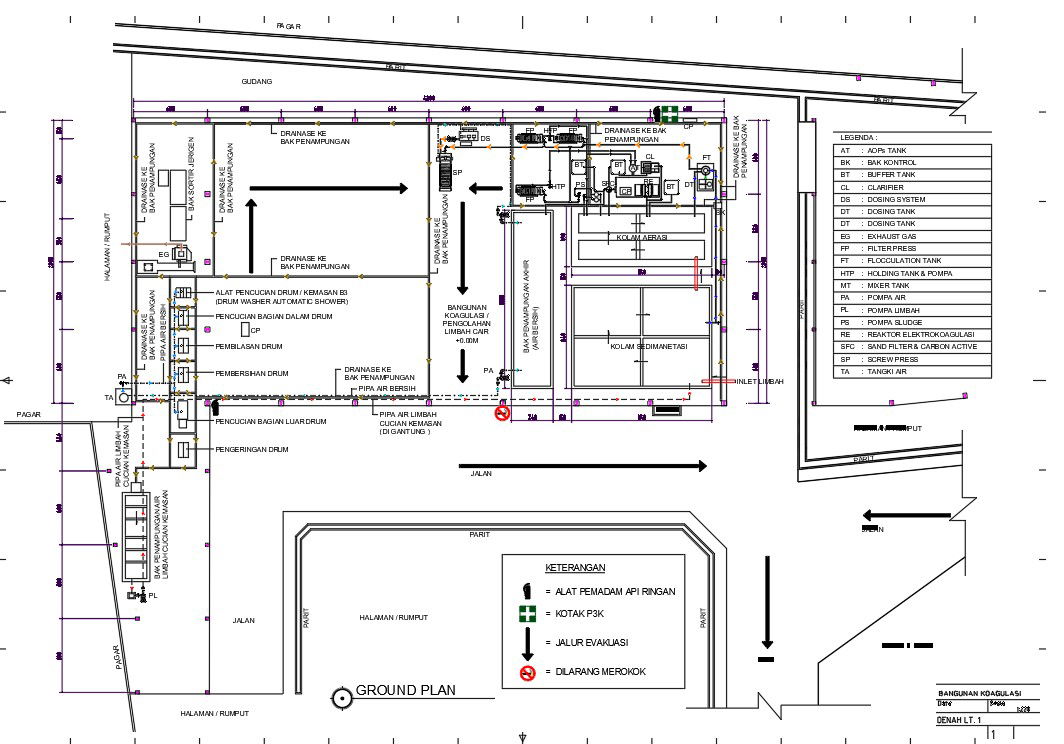
A swimming pool construction CAD drawing model is given in this file. In this, the water treatment process is mentioned. Pool sedimentation is provided. This pool is designed with one side road face. The water inlet and outlets are mentioned. The water line is provided from drainage to shop bottle. For more details download the CAD file from our cadbull website.
File Type:
DWG
File Size:
4.7 MB
Category::
Construction
Sub Category::
Construction Detail Drawings
type:
Gold
Uploaded by:

