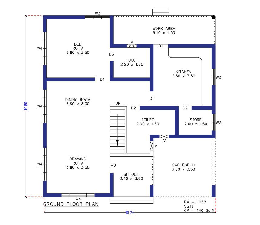
10x11m architecture residential 1bhk house plan
Description
10x11m architecture residential 1bhk house plan is mentioned in this CAD file. The living room, drawing room, dining area, car porch, sit out, kitchen, work area, store room, common toilet, and master bedroom with attached toilets are available on this house plan. For more details download the CAD file from our cadbull website.
Uploaded by:

