9x15m first floor and second floor house plan drawing
Description
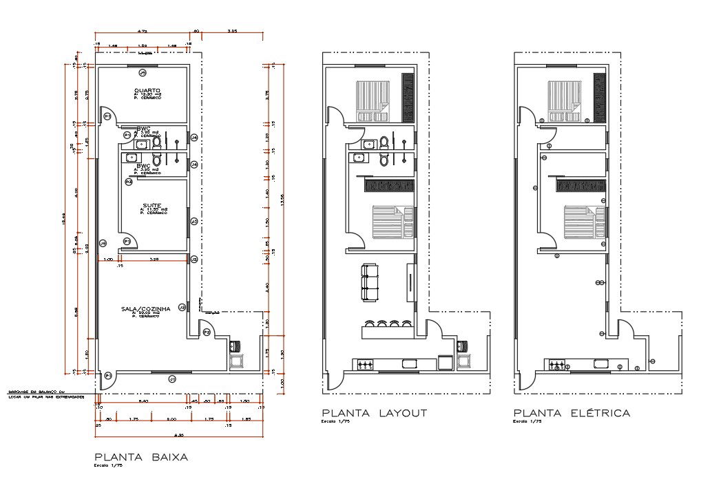
9x15m first floor and second floor house plan drawings are mentioned in this file. On the first floor, the living room cum kitchen, master bedroom with attached toilet, common bathroom, and kid’s rooms are available. For more details download the CAD drawing file from our cadbull website.
Uploaded by:

