Dining and pooja room interior plan and elevation views
Description
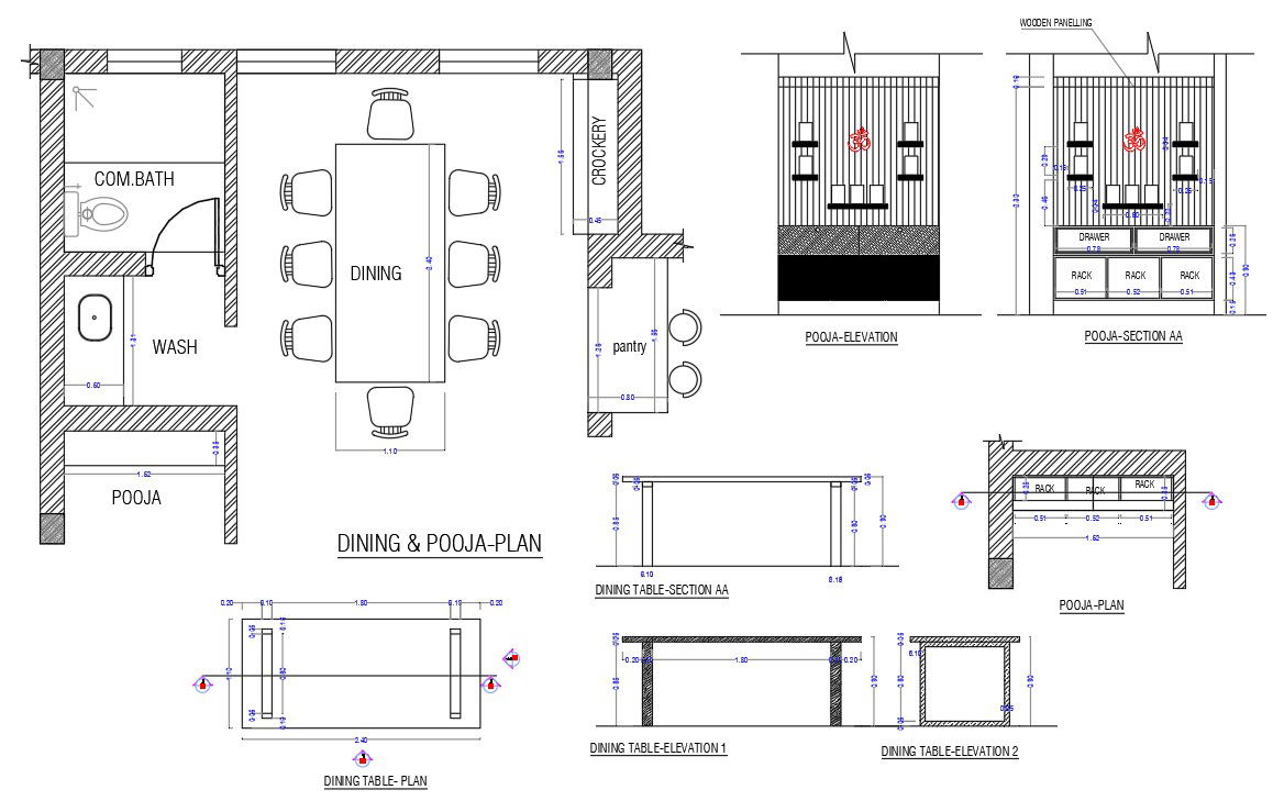
Dining and pooja room interior plan and elevation views are given in this Cad file. On the key plan, the dining area, pooja room, wash area, pantry, crockery, and common bathrooms are available. Dining table plan, section, and elevation views are given. Pooja room section, and elevation views are given. For more details, download the CAD drawing image and AutoCAD files from our website cadbull.
Uploaded by:

