42x40m theme park building foundation section CAD drawings
Description
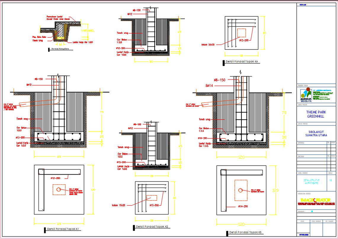
42x40m theme park building foundation section CAD drawings are given in this file. The dimension of each foundation is given with reinforcement details. 1:3:5 lean concrete is provided. 1:2:3 RCC is provided at the top. The dimension of the column and its reinforcement details are mentioned. For more detail download the AutoCAD drawing file from our cadbull website.
Uploaded by:

