23x15m multistorey apartment electrical radiator fixing drawing
Description
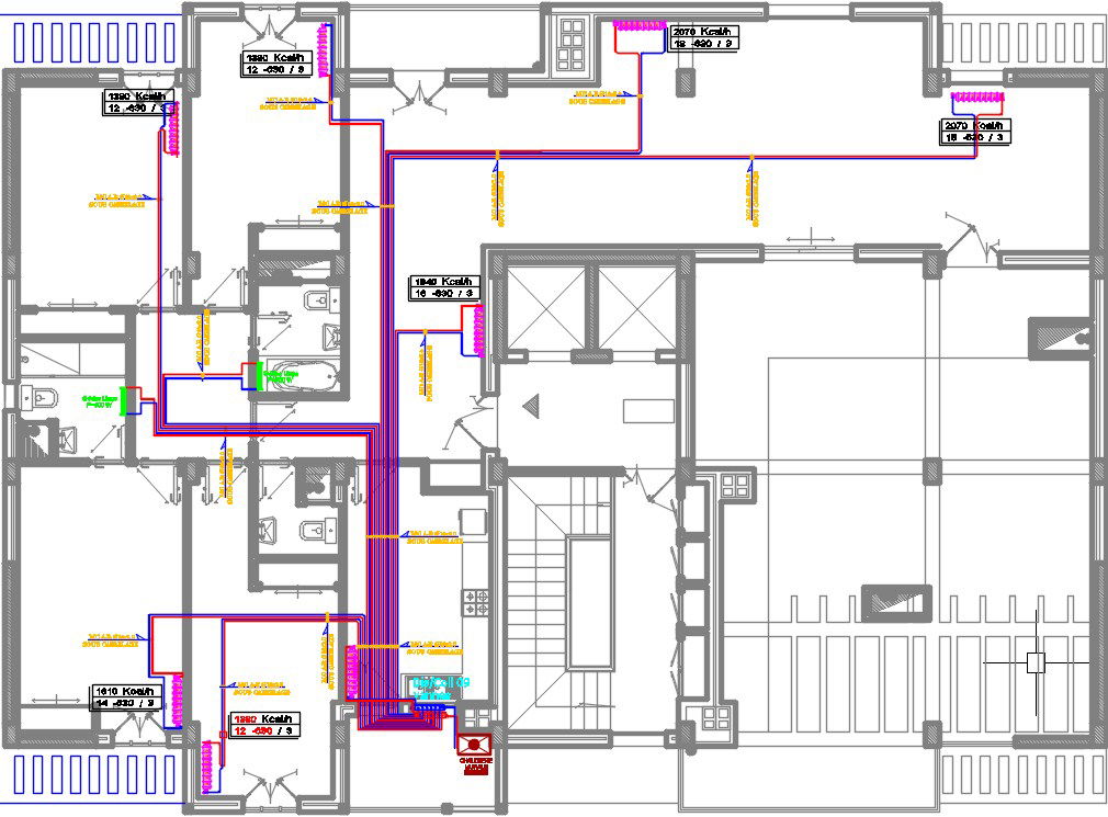
23x15m multistorey apartment electrical radiator fixing drawing is given in this AutoCAD model. Each radiator location is mentioned with kcal. This is same for Block A1, A2, and A3. A dryer electrical watt is 500w. On this plan, two dryers are provided for two bathrooms. For more details download the AutoCAD drawing file from our Cadbull website.
Uploaded by:

