23x15m multistorey apartment entrance floor plan electrical radiator fixing drawing
Description
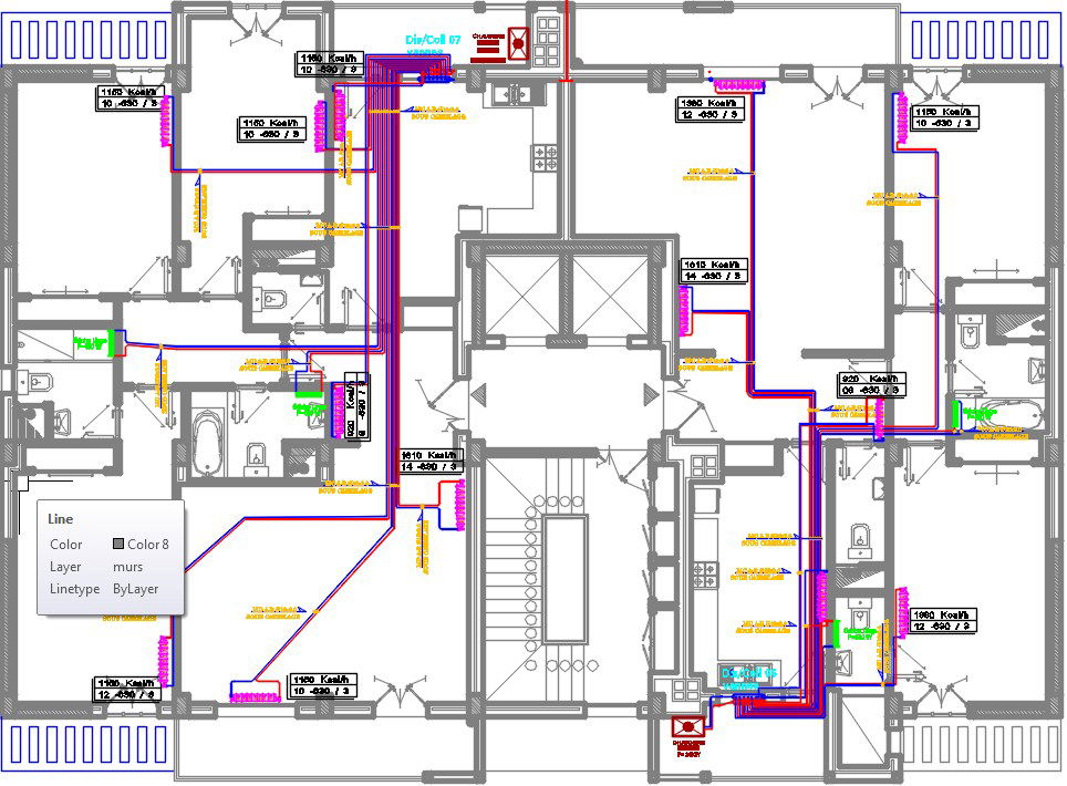
23x15m multistorey apartment entrance floor plan electrical radiator fixing drawing is given in this AutoCAD model. Each radiator location is mentioned with kcal. This is same for Block A1, A2, and A3. The radiator and dryer locations are mentioned. For more details download the AutoCAD drawing file from our Cadbull website.
Uploaded by:

