23x15m residential multistory apartment first floor pipe line layout CAD drawing
Description
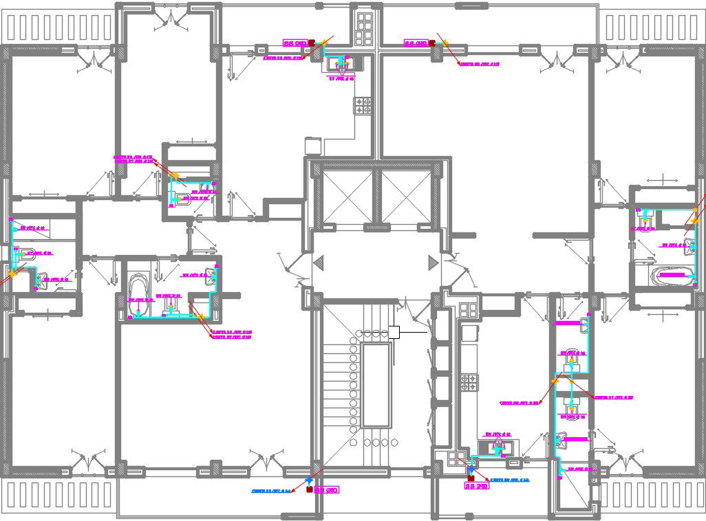
23x15m residential multistory apartment first floor pipe line layout CAD drawing is given in this file. This apartment house plan given with the detailed view of the two house. On each floor two houses are available. This is a 3bhk house plan. On each house, the living room, dining area, kitchen, balcony, parent’s bedroom with attached toilet, kid’s room with the attached toilet, guest room, and common bathrooms are available. This plan is given for block A1, A2, and A3. The dimension of the each room is given in the m2. The length and breadth of the houses plans are mentioned clearly in this drawing. For more details download the AutoCAD drawing file from our Cadbull website.
Uploaded by:
