23x15m residential multistory apartment 7th floor pipe line layout CAD drawing
Description
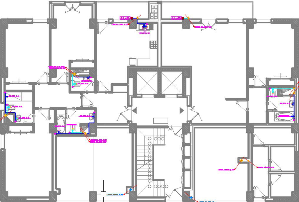
23x15m residential multistory apartment 7th floor pipe line layout CAD drawing is given in this file. The pipe lines are provided to the common bathroom, parent’s bathroom, kid’s bathroom, and kitchens. This apartment house plan given with a detailed view of the two house. On each floor two houses are available. This is a 3bhk house plan. On each house, the living room, dining area, kitchen, balcony, parent’s bedroom with attached toilet, kid’s room with the attached toilet, guest room, and common bathrooms are available. The length and breadth of the houses plans are mentioned clearly in this drawing. For more details download the AutoCAD drawing file from our Cadbull website.
Uploaded by:
