23x15m multistory apartment eight floor water line CAD drawing
Description
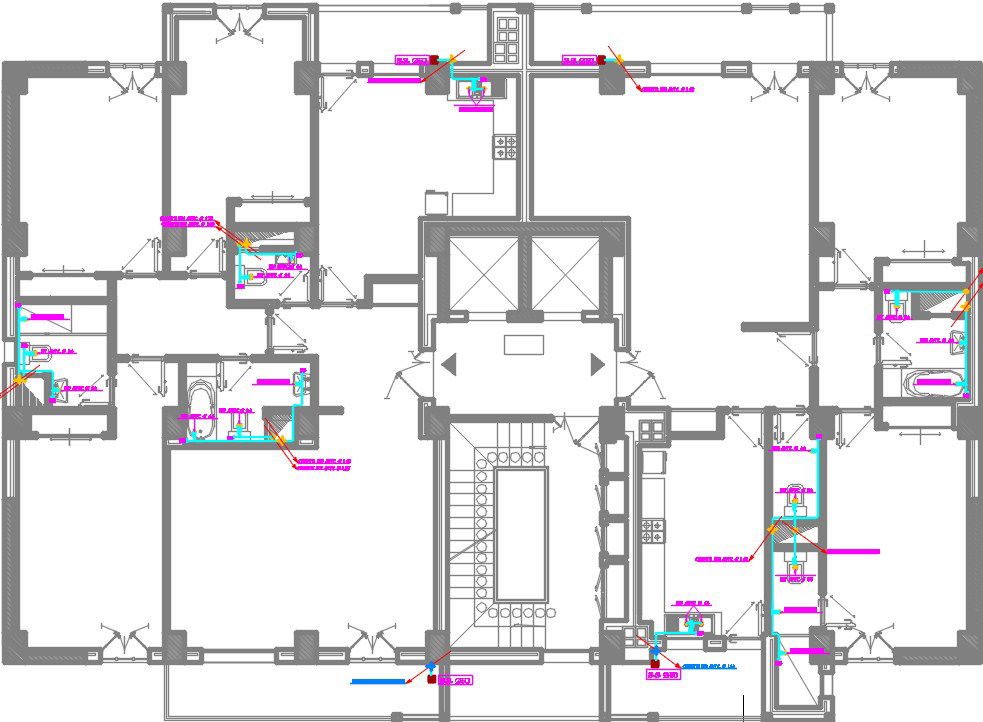
23x15m multistory apartment eight floor water line CAD drawing is given in this file. On these houses, the common bathrooms, kitchens, parent’s bathrooms, and guest bathrooms are available and sanitary lines are provided. The lift is available on this plan. This apartment house plan is given with a detailed view of the two housess. On each floor two houses are available. This is a 3bhk house plan. On each house, the living room, dining area, kitchen, balcony, parent’s bedroom, kid’s room with the attached toilet, guest room, and common bathrooms are available. This plan is given for the block A1, A2, and A3. The dimension of the each room is given in the m2. The length and breadth of the houses plans are mentioned clearly in this drawing. For more details download the AutoCAD drawing file from our Cadbull website.
Uploaded by:

