23x15m 5th floor apartment home plan CAD drawing is given in this file
Description
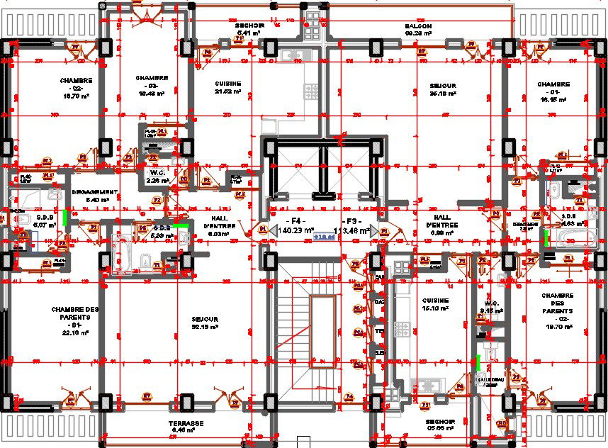
23x15m 5th floor apartment home plan CAD drawing is given in this file. This is G+ 11 apartment building. On each house, the living room, dining area, kitchen, balcony, parent’s bedroom, kid’s room with the attached toilet, guest room, and common bathrooms are available. This plan is given for the block A1, A2, and A3. The dimension of the each room is given in the m2. On each floor two houses are available. This is a 3bhk house plan. The lift is available on this plan. This apartment house plan given with the detailed view of the two house. The dimension of the each room is given in the m2. The length and breadth of the houses plans are mentioned clearly in this drawing. For more details download the AutoCAD drawing file from our Cadbull website.
Uploaded by:
