23x15m Block A2 apartment 4th floor plan designs
Description
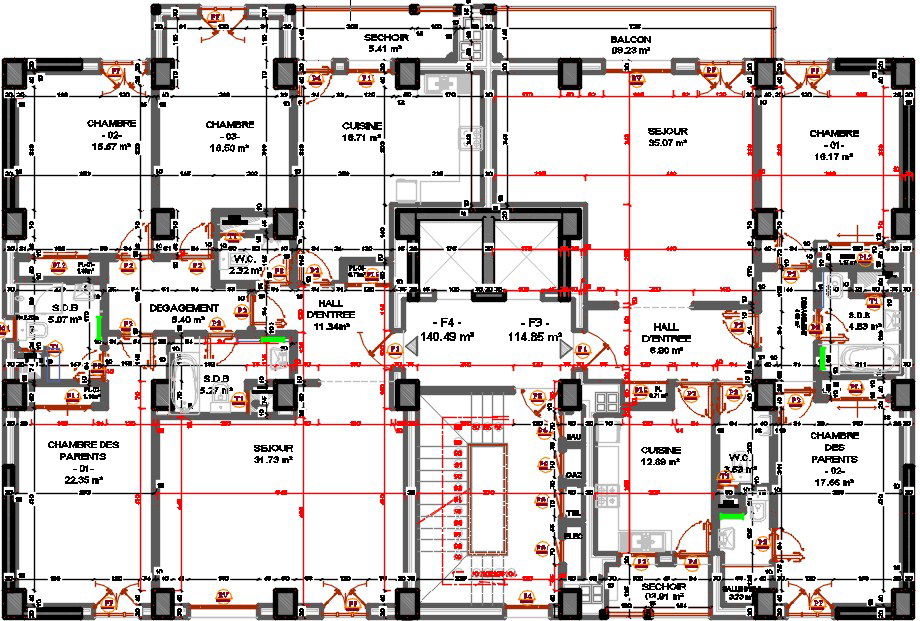
23x15m Block A2 apartment 4th floor plan design is given in this 2D DWG drawing model. On this floor, two houses are available. The area of each room is mentioned in the m2. Lifts are available for the two houses. This is a 3bhk and 1bhk house plan. On the first house, the living room, balcony, master bedroom with attached toilet, kid’s room with attached toilet, guest room, kitchen, and common bathrooms are available. In the second house 2 bedrooms are available. The living room, balcony, master bedroom with attached toilet, kid’s room with attached toilet, kitchen, and common bathrooms are available. For more details download the AutoCAD drawing file from our Cadbull website.
Uploaded by:
