25x14m C block floor sanitary outlet pipeline architecture drawing
Description
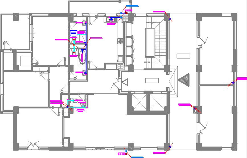
25x14m C block floor sanitary outlet pipeline architecture drawing is given in this model. The living room entrance, hall, kitchen, balcony, terrace open, parent’s bedroom with attached toilet, kid’s room, guest room, and two common bathrooms are available. A singe house is available on this plan. There are two local shops are available. For more details download the AutoCAD drawing file from our Cadbull website.
Uploaded by:

