42x40m theme park column cross section AutoCAD drawing
Description
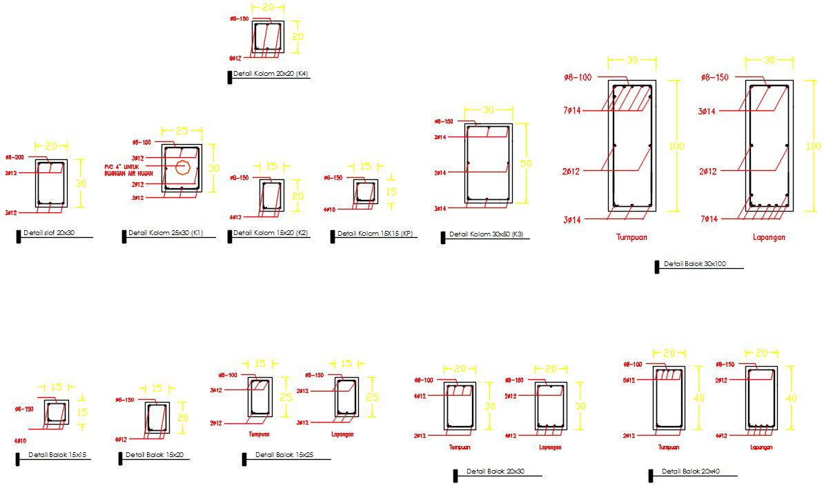
42x40m theme park column cross section AutoCAD drawing is given in this file. The dimension of the each column is given with reinforcement details. For more details download the AutoCAD drawing file from our Cadbull website.
Uploaded by:
