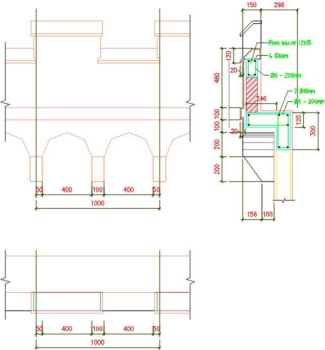
1000mm length of the parapet wall detail drawing
Description
1000mm length of the parapet wall detail drawing is given in this file. The distance between each arch is 100mm. The length of the arch is 400mm. Reinforcement details, and ring blocks are mentioned. For more details download the AutoCAD drawing file from our Cadbull website.
Uploaded by:

